Дома
(current)
За Нас
Услуги
Проекти
Кариера
Контакт
Јазик
MK
EN
PROEKTI
PROEKTIRAWE, NADZOR
I REVIZIJA
Викенд куќа
Доградба на мост на градска река за новопроектиран кружен ток
Доградба на мост
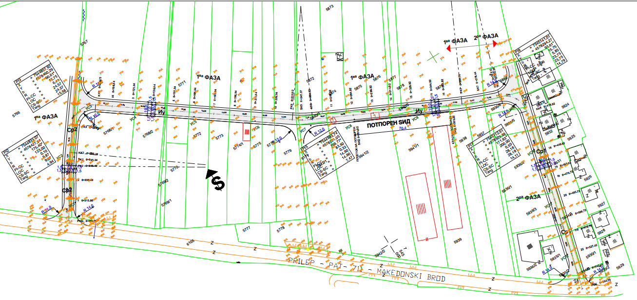
Изградба на новопроектирана станбена улица
Откупен центар за овошје и зеленчук
Реконструкција на дел од улица
Салон за автомобили
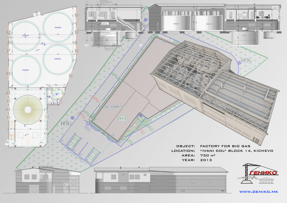
Фабрика за биогас
Фабрика за бисквити
Фабрика за печатење
Фабрика за текстил
Фабрика за тестенини
Фабрика за чоколадо
Previous
Next
URBANISTI:KO PLANIRAWE
Архитектонско урбанистички проект
Детален урбанистички план
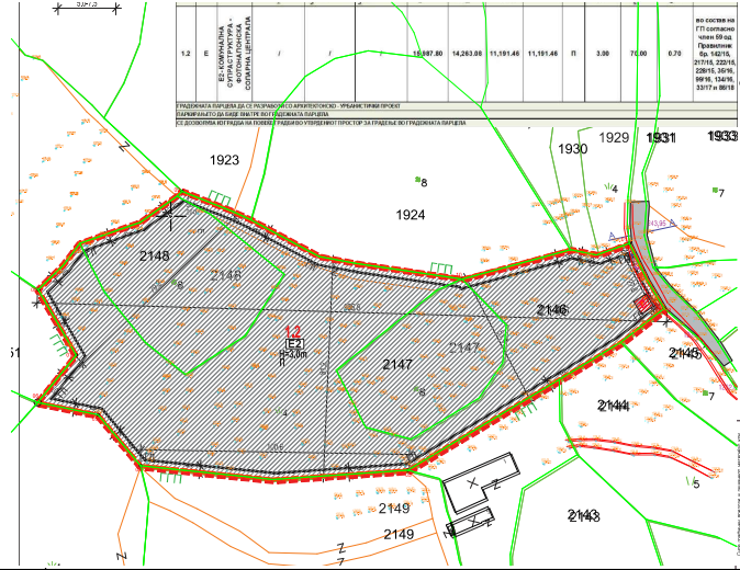
Урбанистички проект за фотонапонска соларна централа
Урбанистички проект
Previous
Next
INTERIEREN DIZAJN
Previous
Next
Заинтересирани?
Контактирајте не на: